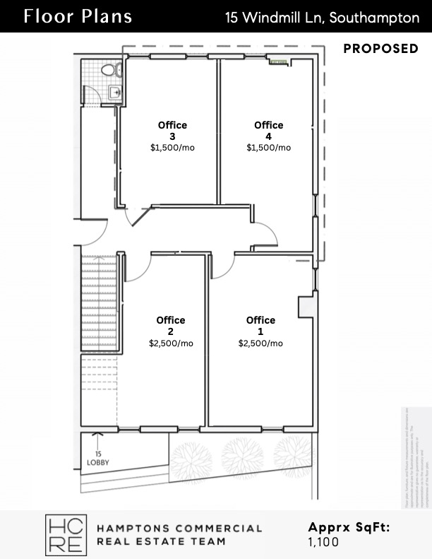
A rare ±1,110sf second-floor office opportunity on Southampton Village’s signalized intersection of Hill Street, Windmill Lane, and Jobs Lane – with direct adjacency to Agawam Park, public parking, & the Village’s most active pedestrian corridors.
The layout can be configured to match your operation: up to four substantial private offices, three substantial offices plus a kitchen, two substantial + two efficiency offices with a kitchen, or a custom build-out. Available together or individually.
The property is part of a fully upgraded lifestyle complex with new façade and upgraded tenancy quality, supported by complementary on-site uses including a natural food market and premium medical / professional operators – creating a polished environment for client-facing businesses and day-to-day team workflow.
SURROUNDING NEIGHBORS:
NY Pilates, Rotations Bicycle Center, Hill Street Boxing, UPS Store, Southampton Cultural Center, Southampton Playhouse
INQUIRE
CUSTOM BUILD OUTS & PACKAGED PRICING
The Hamptons Commercial Real Estate Team for Additional Information.






